1. 照度測定 / 非常用照度測定
CheX 照度測定の流れと概要を動画でご確認いただけます。
1-1. 測定ポイントNo項目の入力文字制限を緩和
測定ポイントの「No」項目に入力できる文字の種類と桁数が増えました。
半角数字4桁まで入力可能でしたが、半角/全角問わず記号も含め10文字まで入力可能になっています。
例えば、「会議室A-1」「会議室A-2」といった入力が可能になります。
※2023/1/18以降に作成した測定帳票が対象です。
1-2. 測定ポイントコピー機能の追加
作成した計画登録済みの測定ポイントをコピーできるようになりました。
1つ目の測定ポイントを計画設定し作成したら、コピーすることで1つ1つ計画情報を入力する手間が無くなり、効率よく測定ポイントを追加することができます。
① コピー元を選択する
複数選択モードをタップし、コピーしたい測定ポイントを指でなぞり選択します。
選択するとメニューが表示されるのでコピーを選択します。 
② 貼り付けする
選択した測定ポイントが1つの場合は、連続コピーモードとなります。
連続コピーモードでは、図面上をタップするたびに測定ポイントを貼り付け可能です。
※コピー対象が複数の場合は、図面上をロングタップしペーストを選択することで、コピーした複数の測定ポイントを貼り付けることができます。
誤タップ等で測定ポイントが追加された場合は、Undoボタンで取消(戻る)が可能です。
③ 連続コピーモードを終了する 
1-3. 測定器連携中の表示パネル追加
測定器連携中の照度値やHOLD状態などの情報が、CheX上で確認できる表示パネルを追加しました。
測定器連携中に測定ポイントが選択されると表示されます。
表示パネルにはHOLDボタンを搭載しており、タップすることでCheX側の操作だけで測定値の取り込みが可能になります。
「▶」をタップすると設定変更が可能です。
表示パネルの追加によって、以下のようなメリットがあります。
・CheX画面上で測定値やHOLD状態が確認可能
・照度計を操作することなく測定値が取り込め、測定時間を短縮
・補助カートを使った検査と相性が良く、単独での測定作業も可能
1-4.測定値を測定ポイント詳細へ直接取り込み
測定器連携による測定値取り込み時に、取り込み画面を経由せず、測定ポイント詳細に直接取り込まれるようになりました。
画面遷移やインポートなどの手順が無くなるので、iPad操作が減り測定時間の短縮に繋がります。
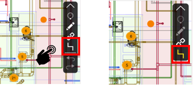
1-5. ルート検査モードの追加
測定ポイントを回る順番を事前に登録し効率的に検査を行う、ルート検査モードを追加しました。
ルート検査を行うことで、より測定時のiPad操作の手間を減らし測定時間が短縮されます。
ルート検査には、日置電気社製 照度計(FT3425)との連携が必要になります。
① ルート検査モードに切り替える
ルート検査アイコンをタップします。アイコンが黄色くなればルート検査モードです。
② ルートを設定する
測定する順番に測定ポイントをなぞります。なぞった測定ポイントは青色になり、左側の「ルート計測対象」に順番に登録されます。
5点法も任意の順番で選択可能です。また、5点法の途中に他の測定ポイントを混ぜることも可能です。
■「部屋一括選択」について
測定ポイントをなぞった後に表示される「部屋一括選択」をタップすると、計画値の「階」と「室名・場所」が同じ測定ポイントを、選択した測定ポイントに近い順で自動選択します。
これにより、測定ポイントの選択操作が楽になり、また測定漏れの防止に役立ちます。
③ ルート設定を変更する
ルート設定後、余分な測定ポイントの削除、ルートの並び替えが可能です。
削除は対象レコードを左へスワイプし削除ボタンから、並び替えは右側の三本線を上下にドラッグすることで可能です。
④ 計測を開始する~計測
ルート設定が完了したら、画面上部の「計測を開始する」をタップしてください。
※この時、測定機器と未連携の場合は、ルート検査の開始ができません。
測定器連携ボタンから事前に測定器と連携してください。
ルート検査モード中も照度値が表示されており、HOLDボタンをタップすることでCheXから測定が可能です。
測定すると、ルート設定した順に測定ポイントが自動的に切り替わるので、次の測定ポイントを選び直すことなく連続で測定が行えます。
測定ポイントの自動切り替えは左上の停止ボタンから停止可能です。
停止すると下記の操作が可能となります。
・現在計測中の測定ポイントの切り替え
・同一測定ポイントで複数回測定
⑤ ルート検査を終了する
ルート検査ボタンをタップすると、終了/再ルート設定のメニューが表示されます。
終了でルート検査モードの終了、再ルート設定で、②の状態に遷移します。
1-6. ポイント詳細項目の並び順を変更
ポイント詳細項目の並び順を見直しました。
コンセントチェックや風量測定と統一し、「…」(編集ボタン)を左端に変更しています。
変更前
変更後
1-7. 新規測定値を判定に採用するように変更(照度のみ)
既に「使用する」状態の測定値がある場合、新しく取り込まれた測定値は「使用しない」として登録されていましたが、新規測定値を「使用する」、既存測定値は「使用しない」として登録されるよう改善しました。
これにより、「…」から「使用する」「使用しない」の状態を変更しなくても、新規測定後すぐに再度合否判定に反映されるようになりました。
1-8. 絞り込み条件の追加
絞り込みに測定ポイントの状態を追加しました。
「未計測」、「NG」、「未計測+NG」で絞り込めるので、測定結果が不合格のポイントや測定漏れの箇所のチェックに活用することができます。
1-9. 測定ポイントラベルのサイズ変更機能追加
設定に「測定ポイントラベル」を追加しました。
これにより、測定ポイントと測定ポイントラベルのサイズを、それぞれ分けて変更することが可能です。
「ラベルサイズをポイントサイズと連動する」をONにすると、ピン/測定ポイントのサイズと連動します。OFFにすると、測定ポイントラベル内でサイズ変更が可能です。 ポイントサイズと連動させないことで、測定ポイントが密集している場合も、測定ポイントと測定ポイントラベルが被らないようにできます。
2. 風量測定
CheX 風量測定の流れと概要を動画でご確認いただけます。
2-1. 測定器連携中の表示パネル追加
測定器連携中の風速や温度などの情報が、CheX上で確認できる表示パネルを追加しました。
測定器連携中に測定ポイントが選択されると表示されます。
表示パネルにはHOLDボタンを搭載しており、タップすることでCheX側の操作だけで測定値の取り込みが可能になります。
「▶」をタップすると設定変更が可能です。
表示パネルの追加によって、以下のようなメリットがあります。
・CheX画面上で測定値やHOLD状態が確認可能
・風速計を操作することなく測定値が取り込め、測定時間を短縮
2-2. 測定値を測定ポイント詳細へ直接取り込み
測定器連携による測定値取り込み時に、取り込み画面を経由せず、測定ポイント詳細に直接取り込まれるようになりました。
画面遷移やインポートなどの手順が無くなるので、iPad操作が減り測定時間の短縮に繋がります。
2-3. ルート検査モードの追加
測定ポイントを回る順番を事前に登録し効率的に検査を行う、ルート検査モードを追加しました。
ルート検査を行うことで、より測定時のiPad操作の手間を減らし測定時間が短縮されます。
ルート検査には、アリアテクニカ社製 風速計(AF101)との連携が必要になります。
① ルート検査モードに切り替える
ルート検査アイコンをタップします。アイコンが黄色くなればルート検査モードです。
② ルートを設定する
測定する順番に測定ポイントをなぞります。なぞった測定ポイントは青色になり、左側の「ルート計測対象」に順番に登録されます。
※VAV・CAV、空調機のポイントはルートに指定できません。図面上で灰色アイコンとなります。
■「部屋一括選択」について
測定ポイントをなぞった後に表示される「部屋一括選択」をタップすると、計画値の「階」と「室名・場所」が同じ測定ポイントを、選択した測定ポイントに近い順で自動選択します。
これにより、測定ポイントの選択操作が楽になり、また測定漏れの防止に役立ちます。
③ ルート設定を変更する
ルート設定後、余分な測定ポイントの削除、ルートの並び替えが可能です。
削除は対象レコードを左へスワイプし削除ボタンから、並び替えは右側の三本線を上下にドラッグすることで可能です。
④ 計測を開始する~計測
ルート設定が完了したら、画面上部の「計測を開始する」をタップしてください。
※この時、測定機器と未連携の場合は、ルート検査の開始ができません。
測定器連携ボタンから事前に測定器と連携してください。
ルート検査モード中も風速値が表示されており、HOLDボタンをタップすることでCheXから測定が可能です。
測定すると、ルート設定した順に測定ポイントが自動的に切り替わるので、次の測定ポイントを選び直すことなく連続で測定が行えます。
この際、測定値が入るタブは、タブ1固定となります。
測定ポイントの自動切り替えは左上の停止ボタンから停止可能です。
停止すると下記の操作が可能となります。
・現在計測中の測定ポイントの切り替え
・同一測定ポイントで複数回測定
⑤ ルート検査を終了する
ルート検査ボタンをタップすると、終了/再ルート設定のメニューが表示されます。
終了でルート検査モードの終了、再ルート設定で、②の状態に遷移します。
2-4. ポイント詳細項目の並び順を変更
ポイント詳細項目の並び順を見直しました。
コンセントチェックや照度測定と統一し、「…」(編集ボタン)を左端に変更しています。
変更前
変更後
3. コンセントチェック
CheX コンセントチェックの流れと概要を動画でご確認いただけます。
3-1. 新規測定値取り込み時の処理を変更
既に「使用する」状態の測定値がある場合、既存測定値は「使用しない」として登録されるよう改善しました。
これにより、「…」から「使用する」「使用しない」の状態を変更しなくても、新規測定後すぐに再度合否判定に反映されるようになりました。